Te huur Appartement Apeldoornseweg in Arnhem Te huur

The Netherlands

€795

Eigenschapsdetails

  • Soort type: Appartement
  • Woningstatus: 1
  • Vastgoedprijs: 795/maand
  • Kamers: 2
  • Slaapkamers: 1
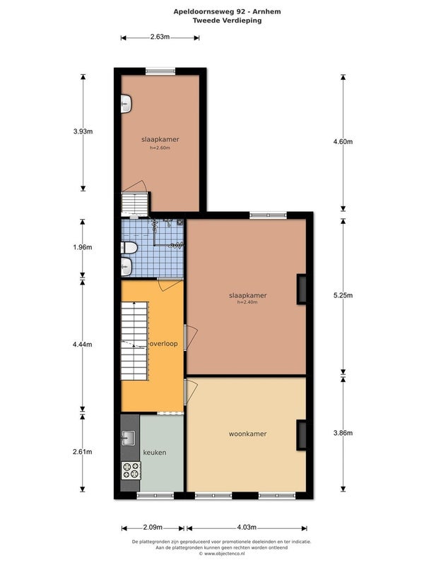
  • Woon gebied: 56 m²
  • Beschikbaar per: Per 01-01-2026
Gecontroleerd op: 16-Dec-2025

Omschrijving

In een mooie karakteristieke bovenwoning, bestaande uit 3 verdiepingen (2 appartementen en 1 studio), mogen wij per 1-9-2023 een 2-kamer appartement aanbieden op de 2e verdieping. Iedere verdieping heeft haar eigen voorzieningen. De woning is gelegen op een prachtige locatie tegenover het Sonsbeekpark en op loopafstand van het centrum, station en winkels. Indeling: Eerste verdieping, appartement 1: Overloop met trapopgang naar tweede verdieping,...... Als je verder klikt kom je bij een nieuwe pagina met uitgebreide informatie over de huurwoning en met de directe contactgegevens van de beheerder

Recent toegevoegd

  • #

    Te huur Appartement Geldropseweg in Eindhoven

    Wilhelminastraat, Haarlem, 2011VP

    €1495 maand

  • #

    Te huur Appartement Marnixstraat in Amsterdam

    Marnixstraat, Amsterdam, 1016XV

    €3500 maand

  • #

    Te huur Appartement Anton Geesinkstraat 11 N in Utrecht

    Anton Geesinkstraat 11 N, Utrecht, 3552BA

    €2200 maand

  • #

    Te huur Appartement Voltastraat in Maastricht

    Voltastraat, Maastricht, 6224EM

    €1490 maand

  • #

    Te huur Appartement Rosmolenplein in Tilburg

    Rosmolenplein, Tilburg, 5014ET

    €1525 maand

  • #

    Te huur Appartement Noorderhavenkade in Rotterdam

    Noorderhavenkade, Rotterdam, 3039RD

    €2145 maand

  • Soortgelijke vermeldingen

    Te huur Appartement Geldropseweg in Eindhoven

    Wilhelminastraat, Haarlem, 2011VP

    • 2 Slaapkamers
    • Oppervlakte 75 m²
    • 3 Kamers

    Te huur Appartement Marnixstraat in Amsterdam

    Marnixstraat, Amsterdam, 1016XV

    • 2 Slaapkamers
    • Oppervlakte 98 m²
    • 3 Kamers

    Te huur Appartement Anton Geesinkstraat 11 N in Utrecht

    Anton Geesinkstraat 11 N, Utrecht, 3552BA

    • 2 Slaapkamers
    • Oppervlakte 91 m²
    • 3 Kamers

    Te huur Appartement Voltastraat in Maastricht

    Voltastraat, Maastricht, 6224EM

    • 2 Slaapkamers
    • Oppervlakte 70 m²
    • 3 Kamers

    Te huur Appartement Rosmolenplein in Tilburg

    Rosmolenplein, Tilburg, 5014ET

    • 2 Slaapkamers
    • Oppervlakte 58 m²
    • 3 Kamers

    Te huur Appartement Noorderhavenkade in Rotterdam

    Noorderhavenkade, Rotterdam, 3039RD

    • 1 Slaapkamers
    • Oppervlakte 76 m²
    • 3 Kamers

    Te huur Appartement Pahudstraat in Den Haag

    Pahudstraat, Den Haag, 2593TH

    • 2 Slaapkamers
    • Oppervlakte 72 m²
    • 3 Kamers

    Te huur Appartement Prinsestraat in Den Haag

    Prinsestraat, Den Haag, 2513CB

    • 2 Slaapkamers
    • Oppervlakte 75 m²
    • 3 Kamers

    Te huur Appartement Jan van Galenstraat in Amsterdam

    Jan van Galenstraat, Amsterdam, 1056CK

    • 2 Slaapkamers
    • Oppervlakte 51 m²
    • 3 Kamers

    Te huur Appartement Weena 201 in Rotterdam

    Weena 201, Rotterdam, 3013AL

    • 2 Slaapkamers
    • Oppervlakte 110 m²
    • 3 Kamers